
Maison d'inspiration
Ecostyle 02
|
|
|
|
|
Du 15.09.25 au 31.10.25PACK ÉNERGIE
|
|
Toutes les infos |
|
|
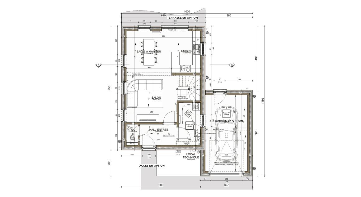
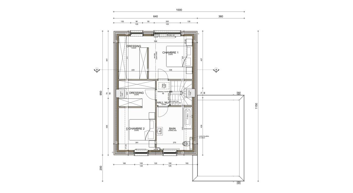
La maison clé sur porte Ecostyle 02 se veut compacte et fonctionnelle. Elle dispose d’un agréable séjour, de 2 chambres avec dressing et d’un garage séparé. Il s’agit d’un modèle confortable pour une famille de 3 personnes, pour un couple ou pour une personne seule. Sa surface habitable est de 121 m².
Le style architectural de cet avant-projet est sobre et classique. Vous pouvez le personnaliser selon vos envies, par exemple, en choisissant des couleurs de briques différentes pour le garage et la maison.
Fidèle à nos engagements, le modèle inspirant Ecostyle 02 associe durabilité et performances énergétiques de pointe. Si cet avant-projet de maison vous inspire, nous nous ferons un plaisir de l’adapter à votre mode de vie.
Utilisez notre configurateur et personnalisez cette maison selon vos envies !
Maison d'inspiration
Ecostyle 02
|
|
|
|
|
Du 15.09.25 au 31.10.25PACK ÉNERGIE
|
|
Toutes les infos |
|
|
La maison clé sur porte Ecostyle 02 se veut compacte et fonctionnelle. Elle dispose d’un agréable séjour, de 2 chambres avec dressing et d’un garage séparé. Il s’agit d’un modèle confortable pour une famille de 3 personnes, pour un couple ou pour une personne seule. Sa surface habitable est de 121 m².
Le style architectural de cet avant-projet est sobre et classique. Vous pouvez le personnaliser selon vos envies, par exemple, en choisissant des couleurs de briques différentes pour le garage et la maison.
Fidèle à nos engagements, le modèle inspirant Ecostyle 02 associe durabilité et performances énergétiques de pointe. Si cet avant-projet de maison vous inspire, nous nous ferons un plaisir de l’adapter à votre mode de vie.
Utilisez notre configurateur et personnalisez cette maison selon vos envies !
Découvrez l'ambiance de votre future maison
Rien de tel que les images pour vous aider à vous projeter dans votre futur lieu de vie. Nous vous proposons ici différentes vues de ce modèle de maison inspirant.
Visualisez les plans de votre maison d'inspiration Ecostyle 02
Cette maison clé sur porte est conçue avec l'agencement intérieur décrit sur ces plans. Avec l’aide d’un de nos conseillers, vous pouvez l'adapter à votre mode de vie et à votre budget.

Notre catalogue vous emmène dans l’univers Thomas & Piron, vous y découvrirez tous nos styles architecturaux, nos agencements, nos finitions, etc.
A sa lecture, vous comprendrez aussi pourquoi Thomas & Piron est le constructeur N°1 en Wallonie !
Vous souhaitez construire votre maison de rêve clé sur porte ?
Découvrez tous nos projets de maisons pour vous inspirer et contactez nos conseillers. Ils seront ravis de vous recevoir dans une de nos Maisons Expo proche de chez vous !
Chaque Maison Expo a son style unique contemporain ou traditionnel. Découvrez-les toutes et visitez celles qui vous inspirent le plus.
Pour votre projet de construction, vous bénéficiez de toute notre expertise, mais pas seulement !
Construire votre maison de rêve avec Thomas & Piron, c’est vous appuyer sur le savoir faire de l’entreprise de construction N°1 en Wallonie. Cela vous garantit de vivre sereinement cette grande étape de votre vie. Nous vous accompagnons pas à pas pour faire les bons choix et nous nous occupons de tout le reste !

Une construction sur mesure
