
Maison d'inspiration
Ecostyle 08
|
|
|
|
|
Du 15.09.25 au 31.10.25PACK ÉNERGIE
|
|
Toutes les infos |
|
|
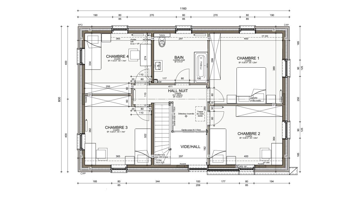
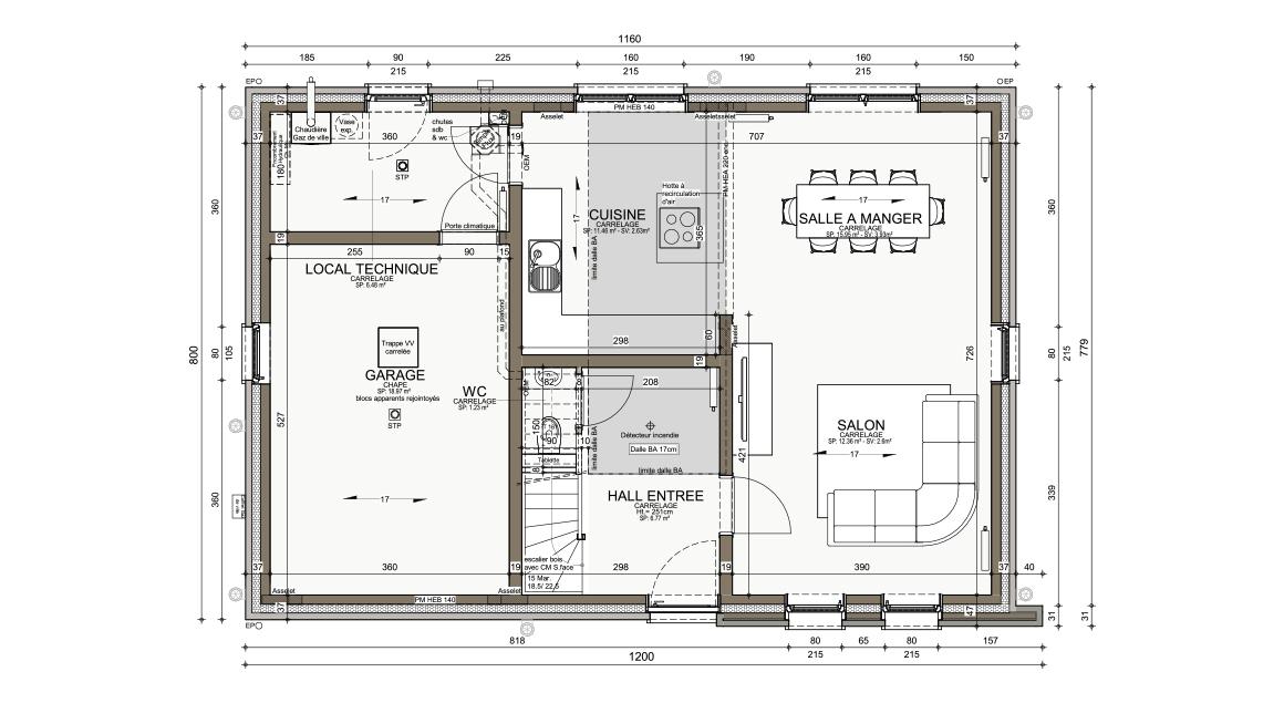
Notre modèle inspirant Ecostyle 08 est spécialement conçu pour les familles nombreuses. Il dispose d’un agréable séjour, de 4 chambres et d’un garage intégré. Sa surface habitable est de 185 m².
La façade se distingue par une zone rectangulaire qui se prolonge en mur brise-vue à droite. Celle-ci comprend deux jolies fenêtres verticales. Vous pouvez personnaliser la maison en optant, par exemple, pour 2 tons de briques contrastés.
Cet avant-projet associe durabilité et performances énergétiques de pointe. Si ce modèle vous inspire, nous nous ferons un plaisir de l’adapter à votre mode de vie.
Utilisez notre configurateur et personnalisez cette maison selon vos envies !
Maison d'inspiration
Ecostyle 08
|
|
|
|
|
Du 15.09.25 au 31.10.25PACK ÉNERGIE
|
|
Toutes les infos |
|
|
Notre modèle inspirant Ecostyle 08 est spécialement conçu pour les familles nombreuses. Il dispose d’un agréable séjour, de 4 chambres et d’un garage intégré. Sa surface habitable est de 185 m².
La façade se distingue par une zone rectangulaire qui se prolonge en mur brise-vue à droite. Celle-ci comprend deux jolies fenêtres verticales. Vous pouvez personnaliser la maison en optant, par exemple, pour 2 tons de briques contrastés.
Cet avant-projet associe durabilité et performances énergétiques de pointe. Si ce modèle vous inspire, nous nous ferons un plaisir de l’adapter à votre mode de vie.
Utilisez notre configurateur et personnalisez cette maison selon vos envies !
Découvrez l'ambiance de votre future maison
Rien de tel que les images pour vous aider à vous projeter dans votre futur lieu de vie. Nous vous proposons ici différentes vues de ce modèle de maison inspirant.
Visualisez les plans de votre maison Ecostyle 08
Cette maison clé sur porte est conçue avec l'agencement intérieur décrit sur ces plans. Avec l’aide d’un de nos conseillers, vous pouvez l'adapter à votre mode de vie et à votre budget.

Notre catalogue vous emmène dans l’univers Thomas & Piron, vous y découvrirez tous nos styles architecturaux, nos agencements, nos finitions, etc.
A sa lecture, vous comprendrez aussi pourquoi Thomas & Piron est le constructeur N°1 en Wallonie !
Vous souhaitez construire votre maison de rêve clé sur porte ?
Découvrez tous nos projets de maisons pour vous inspirer et contactez nos conseillers. Ils seront ravis de vous recevoir dans une de nos Maisons Expo proche de chez vous !
Chaque Maison Expo a son style unique contemporain ou traditionnel. Découvrez-les toutes et visitez celles qui vous inspirent le plus.
Pour votre projet de construction, vous bénéficiez de toute notre expertise, mais pas seulement !
Construire votre maison de rêve avec Thomas & Piron, c’est vous appuyer sur le savoir faire de l’entreprise de construction N°1 en Wallonie. Cela vous garantit de vivre sereinement cette grande étape de votre vie. Nous vous accompagnons pas à pas pour faire les bons choix et nous nous occupons de tout le reste !

Une construction sur mesure
