
Maison d'inspiration
Ecostyle 01
|
|
|
|
|
Du 15.09.25 au 31.10.25PACK ÉNERGIE
|
|
Toutes les infos |
|
|
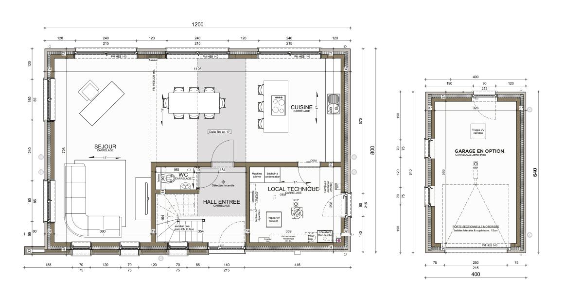
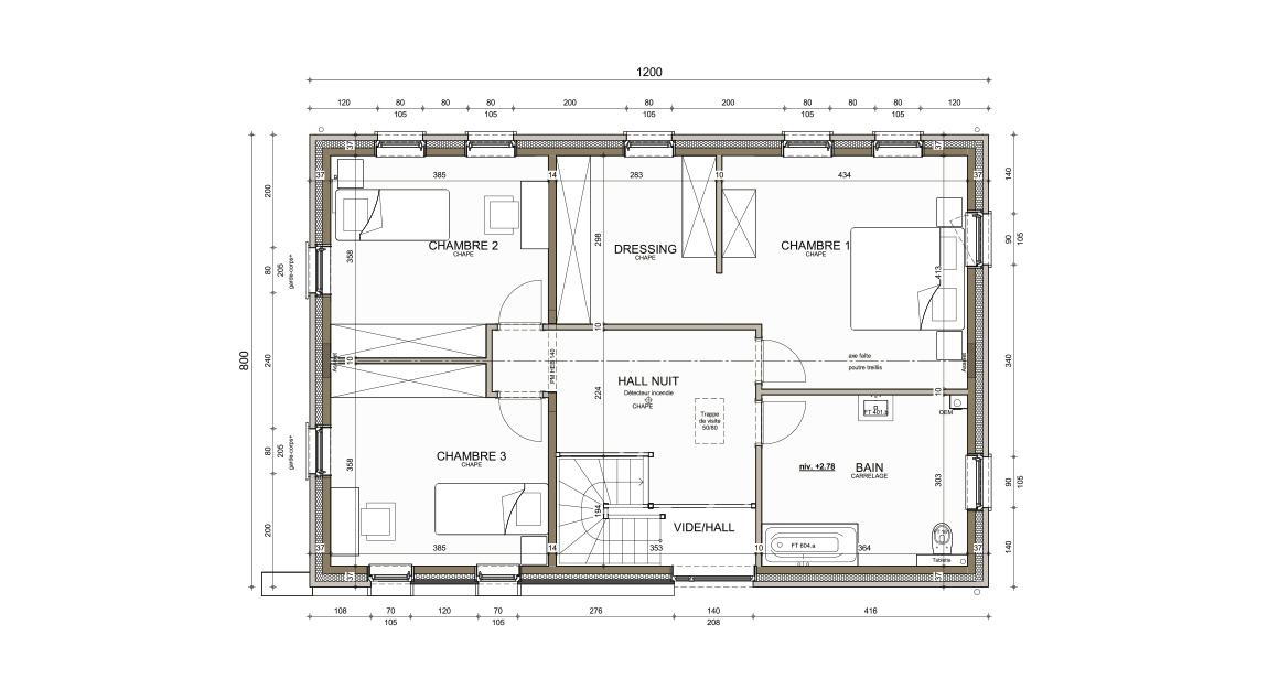
La maison clé sur porte Ecostyle 01 est contemporaine et spacieuse. Idéale pour une famille de 4 personnes, elle dispose d’un séjour lumineux, de 3 chambres et d’un garage séparé. Sa surface habitable est de 192 m².
La façade se distingue par une zone rectangulaire qui se prolonge en mur brise-vue. Pour ajouter une touche d’originalité, vous pouvez varier les tons de briques.
Fidèle à nos engagements, cet avant-projet est conçu pour associer durabilité et performances énergétiques de pointe. Si ce modèle de maison vous inspire, nous nous ferons un plaisir de l’adapter à vos souhaits.
Utilisez notre configurateur et personnalisez cette maison selon vos envies !
Maison d'inspiration
Ecostyle 01
|
|
|
|
|
Du 15.09.25 au 31.10.25PACK ÉNERGIE
|
|
Toutes les infos |
|
|
La maison clé sur porte Ecostyle 01 est contemporaine et spacieuse. Idéale pour une famille de 4 personnes, elle dispose d’un séjour lumineux, de 3 chambres et d’un garage séparé. Sa surface habitable est de 192 m².
La façade se distingue par une zone rectangulaire qui se prolonge en mur brise-vue. Pour ajouter une touche d’originalité, vous pouvez varier les tons de briques.
Fidèle à nos engagements, cet avant-projet est conçu pour associer durabilité et performances énergétiques de pointe. Si ce modèle de maison vous inspire, nous nous ferons un plaisir de l’adapter à vos souhaits.
Utilisez notre configurateur et personnalisez cette maison selon vos envies !
Découvrez l'ambiance de votre future maison
Rien de tel que les images pour vous aider à vous projeter dans votre futur lieu de vie. Nous vous proposons ici différentes vues de ce modèle de maison inspirant.
Visualisez les plans de votre maison d'inspiration Ecostyle 01
Cette maison clé sur porte est conçue avec l'agencement intérieur décrit sur ces plans. Avec l’aide d’un de nos conseillers, vous pouvez l'adapter à votre mode de vie et à votre budget.

Notre catalogue vous emmène dans l’univers Thomas & Piron, vous y découvrirez tous nos styles architecturaux, nos agencements, nos finitions, etc.
A sa lecture, vous comprendrez aussi pourquoi Thomas & Piron est le constructeur N°1 en Wallonie !
Vous souhaitez construire votre maison de rêve clé sur porte ?
Découvrez tous nos projets de maisons pour vous inspirer et contactez nos conseillers. Ils seront ravis de vous recevoir dans une de nos Maisons Expo proche de chez vous !
Chaque Maison Expo a son style unique contemporain ou traditionnel. Découvrez-les toutes et visitez celles qui vous inspirent le plus.
Pour votre projet de construction, vous bénéficiez de toute notre expertise, mais pas seulement !
Construire votre maison de rêve avec Thomas & Piron, c’est vous appuyer sur le savoir faire de l’entreprise de construction N°1 en Wallonie. Cela vous garantit de vivre sereinement cette grande étape de votre vie. Nous vous accompagnons pas à pas pour faire les bons choix et nous nous occupons de tout le reste !

Une construction sur mesure
