
Maison d'inspiration
Ecostyle 10
|
|
|
|
|
Du 15.09.25 au 31.10.25PACK ÉNERGIE
|
|
Toutes les infos |
|
|
La maison clé sur porte Ecostyle 10 se veut compacte et fonctionnelle. Elle dispose d’un séjour lumineux, d’une buanderie et de 3 chambres à l’étage. Sa surface habitable est de 132 m².
Son architecture sobre se distingue par la verticalité de ses fenêtres. L’entrée légèrement en retrait ajoute un plus à la façade. A l’aide de notre configurateur, vous pouvez tester différentes couleurs de briques, de châssis et de revêtements de toit.
Fidèle à nos engagements, la maison Ecostyle 10 associe durabilité et performances énergétiques de pointe. Si elle vous inspire, nous nous ferons un plaisir de l’adapter aux besoins de votre famille.
Visitez cet avant-projet inspirant en vidéo.
Maison d'inspiration
Ecostyle 10
|
|
|
|
|
Du 15.09.25 au 31.10.25PACK ÉNERGIE
|
|
Toutes les infos |
|
|
La maison clé sur porte Ecostyle 10 se veut compacte et fonctionnelle. Elle dispose d’un séjour lumineux, d’une buanderie et de 3 chambres à l’étage. Sa surface habitable est de 132 m².
Son architecture sobre se distingue par la verticalité de ses fenêtres. L’entrée légèrement en retrait ajoute un plus à la façade. A l’aide de notre configurateur, vous pouvez tester différentes couleurs de briques, de châssis et de revêtements de toit.
Fidèle à nos engagements, la maison Ecostyle 10 associe durabilité et performances énergétiques de pointe. Si elle vous inspire, nous nous ferons un plaisir de l’adapter aux besoins de votre famille.
Visitez cet avant-projet inspirant en vidéo.
Découvrez l’ambiance de votre future maison
Rien de tel que les images pour vous aider à vous projeter dans votre futur lieu de vie. Nous vous proposons ici différentes vues de ce modèle de maison inspirant.
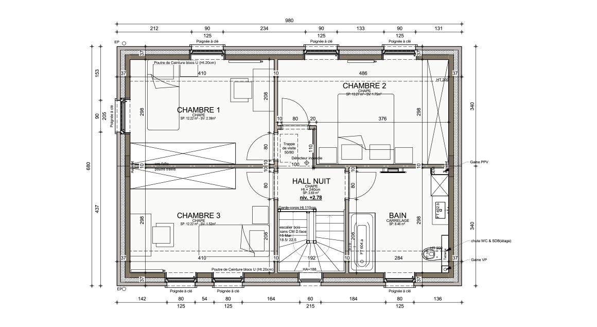
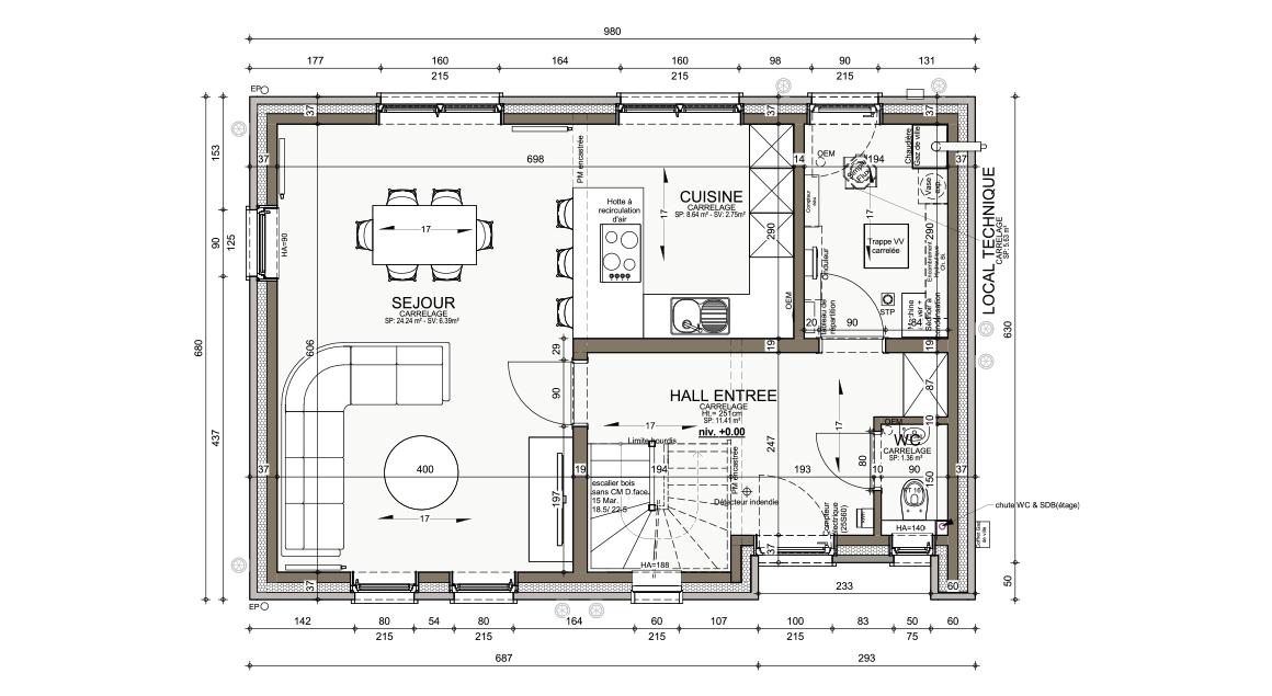
Visualisez les plans de votre maison Ecostyle 10
Cette maison clé sur porte est conçue avec l'agencement intérieur décrit sur ces plans. Avec l’aide d’un de nos conseillers, vous pouvez l'adapter à votre mode de vie et à votre budget.

Notre catalogue vous emmène dans l’univers Thomas & Piron, vous y découvrirez tous nos styles architecturaux, nos agencements, nos finitions, etc.
A sa lecture, vous comprendrez aussi pourquoi Thomas & Piron est le constructeur N°1 en Wallonie !
Vous souhaitez construire votre maison de rêve clé sur porte ?
Découvrez tous nos projets de maisons pour vous inspirer et contactez nos conseillers. Ils seront ravis de vous recevoir dans une de nos Maisons Expo proche de chez vous !
Chaque Maison Expo a son style unique contemporain ou traditionnel. Découvrez-les toutes et visitez celles qui vous inspirent le plus.
Pour votre projet de construction, vous bénéficiez de toute notre expertise, mais pas seulement !
Construire votre maison de rêve avec Thomas & Piron, c’est vous appuyer sur le savoir faire de l’entreprise de construction N°1 en Wallonie. Cela vous garantit de vivre sereinement cette grande étape de votre vie. Nous vous accompagnons pas à pas pour faire les bons choix et nous nous occupons de tout le reste !

Une construction sur mesure
