
Maison d'inspiration
Ecostyle 26
|
|
|
|
|
Du 15.09.25 au 31.10.25PACK ÉNERGIE
|
|
Toutes les infos |
|
|
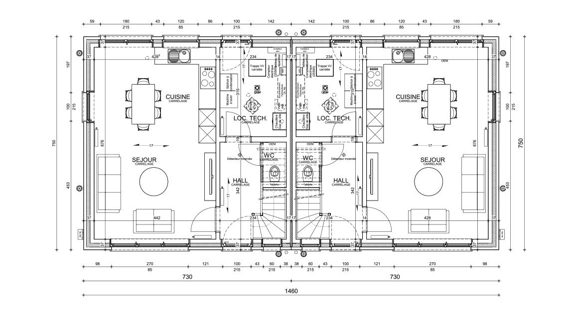
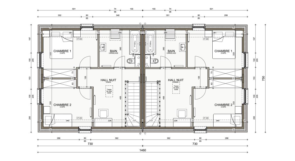
Le modèle Ecostyle 26 comprend 2 maisons semi-mitoyennes (3 façades). Chaque maison dispose d’1 agréable séjour et de 2 chambres. La surface habitable est de 109 m² par habitation.
L’architecture est sobre et moderne. La façade peut être personnalisée en optant pour 2 tons de crépis ou briques contrastés. Les 2 maisons jumelles forment un ensemble harmonieux.
Comme nos autres constructions, l’avant-projet Ecostyle 26 associe durabilité et performances énergétiques de pointe. Si cette configuration vous inspire, nous nous ferons un plaisir de l’adapter aux besoins de votre famille.
Maison d'inspiration
Ecostyle 26
|
|
|
|
|
Du 15.09.25 au 31.10.25PACK ÉNERGIE
|
|
Toutes les infos |
|
|
Le modèle Ecostyle 26 comprend 2 maisons semi-mitoyennes (3 façades). Chaque maison dispose d’1 agréable séjour et de 2 chambres. La surface habitable est de 109 m² par habitation.
L’architecture est sobre et moderne. La façade peut être personnalisée en optant pour 2 tons de crépis ou briques contrastés. Les 2 maisons jumelles forment un ensemble harmonieux.
Comme nos autres constructions, l’avant-projet Ecostyle 26 associe durabilité et performances énergétiques de pointe. Si cette configuration vous inspire, nous nous ferons un plaisir de l’adapter aux besoins de votre famille.
Découvrez l'ambiance de votre future maison Ecostyle 26
Rien de tel que les images pour vous aider à vous projeter dans votre futur lieu de vie. Nous vous proposons ici différentes vues de ce modèle de maison inspirant.
Visualisez les plans de votre maison d'inspiration Ecostyle 26
Cette maison clé sur porte est conçue avec l'agencement intérieur décrit sur ces plans. Avec l’aide d’un de nos conseillers, vous pouvez l'adapter à votre mode de vie et à votre budget.

Notre catalogue vous emmène dans l’univers Thomas & Piron, vous y découvrirez tous nos styles architecturaux, nos agencements, nos finitions, etc.
A sa lecture, vous comprendrez aussi pourquoi Thomas & Piron est le constructeur N°1 en Wallonie !
Vous souhaitez construire votre maison de rêve clé sur porte ?
Découvrez tous nos projets de maisons pour vous inspirer et contactez nos conseillers. Ils seront ravis de vous recevoir dans une de nos Maisons Expo proche de chez vous !
Chaque Maison Expo a son style unique contemporain ou traditionnel. Découvrez-les toutes et visitez celles qui vous inspirent le plus.
Pour votre projet de construction, vous bénéficiez de toute notre expertise, mais pas seulement !
Construire votre maison de rêve avec Thomas & Piron, c’est vous appuyer sur le savoir faire de l’entreprise de construction N°1 en Wallonie. Cela vous garantit de vivre sereinement cette grande étape de votre vie. Nous vous accompagnons pas à pas pour faire les bons choix et nous nous occupons de tout le reste !

Une construction sur mesure
